Objektart
Adresse
Objektdaten
Informationen
Ausstattung
Details
Mehrfamilienhaus mit 4 Wohneinheiten, 2 Garagen, 2 Carports und großem Grundstück
Zum Verkauf steht ein gepflegtes 4-Familienhaus mit einer Gesamtwohnfläche von ca. 395 m² auf einem großzügigen Grundstück von ca. 1.007 m². Die Immobilie wurde ursprünglich im Jahr 1900 als Einfamilienhaus erbaut und 1990 um einen Anbau erweitert und zu einem Zweifamilienhaus ausgebaut. 2013 wurde der Dachboden in zwei zusätzliche Wohnungen ausgebaut. Somit sind insgesamt 4 Wohnungen vorhanden.
Die Beheizung erfolgt über eine Ölheizung (Bj. 2004), während die Warmwasserversorgung umweltfreundlich über eine Solaranlage (Bj. 2021) läuft.
Die großzügige Wohneinheit im Erdgeschoss (Whg. 1) wird derzeit noch vom Eigentümer selbst bewohnt. Hierdurch ergeben sich für den Käufer hervorragende Möglichkeiten: Ein Erwerber kann die Einheit nach Absprache entweder selbst beziehen oder durch eine Neuvermietung der Erdgeschosswohnung - gegebenenfalls auch an den bisherigen Eigentümer - die monatlichen Mieteinnahmen deutlich steigern und so die Gesamtrendite des Objekts optimieren.
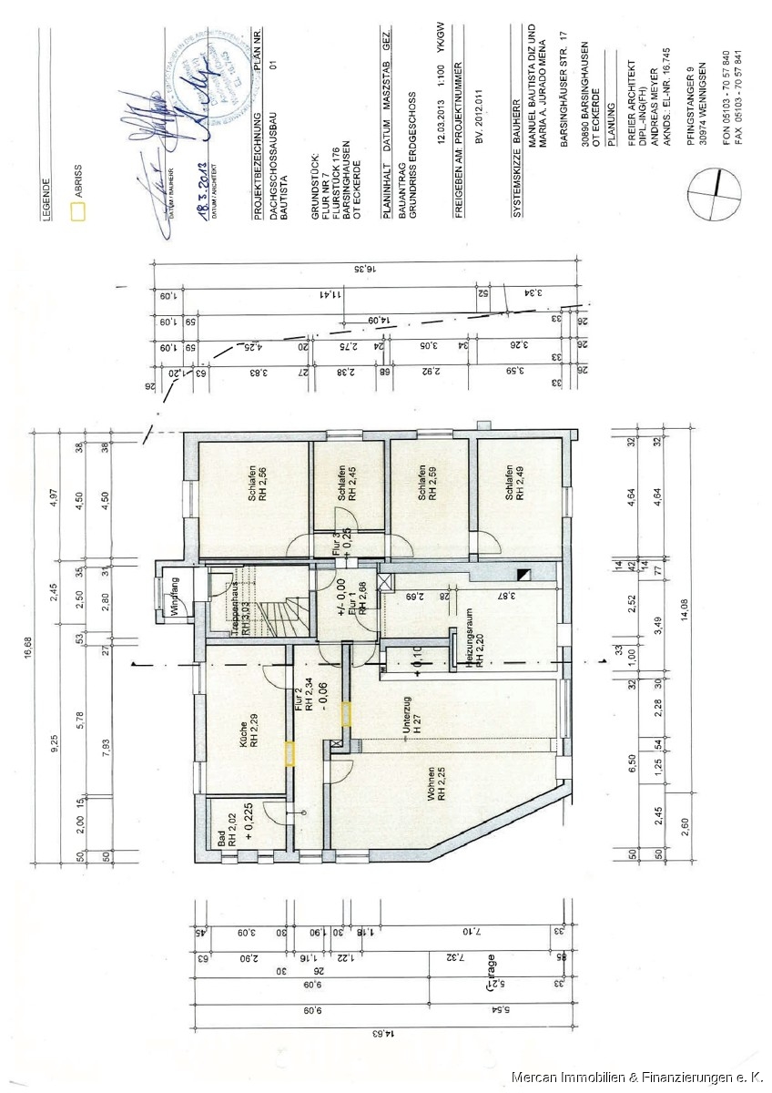
Wohnungsaufteilung:
g. 1: Erdgeschoss (ca. 130 m²)
- 4 Zimmer, großes Wohnzimmer
- Badezimmer mit Badewanne und Dusche
- Gäste-WC mit zusätzlicher Dusche
- Große, überdachte Terrasse
- Moderne 3-fach verglaste Fenster (Bj. 2016)
g. 2: 1. Obergeschoss (ca. 130 m², vermietet seit 2024 für 1.200 EUR inkl. Heizung & Strom)
- 4 Zimmer, geräumige Wohnfläche
- 2-fach verglaste Fenster (Bj. 2016)
. 3: Dachgeschoss (ca. 80 m², vermietet ab 01.05.2025 für 900 EUR + Strom
- 3 Zimmer
- Badezimmer mit Badewanne und Dusche
- Balkon
g. 4: Dachgeschoss (ca. 55 m², vermietet für
- 2 Zimmer
- Badezimmer mit Dusche
- Fenster aus 2014
Zusätzliche Highlights:
Garagen
oßzügiges Grundstück mit 1.007 m² Fläche
traktive Mieteinnahmen durch bestehende Vermietung
hige Lage mit guter Anbindung
Das Haus eignet sich ideal als Kapitalanlage oder für Eigennutzer mit Vermietungspotenzial.
Allgemein:
Familienhaus mit ca. 395 m² Wohnfläche
oßes Grundstück ca. 1.007 m²
ujahr 1900, Anbau 1980, Ausbau DG Wohnungen 2013
lheizung (Bj. 2004)
-Anlage 16 kWh Module und 12 KW Speicher (Bj. 2021)
Garagen und 2 Carports
eteinnahmen mtl. ab dem 01.05.2025 = ca. 2.500 EUR
Wohnungen:
Erdgeschoss (ca. 130 m²)
4 Zimmer
Bad mit Badewanne & Dusche
Gäste-WC mit zusätzlicher Dusche
Überdachte Terrasse
3-fach verglaste Fenster (Bj. 2016)
1. Obergeschoss (ca. 130 m², vermietet für 1.200 EUR inkl. Heizung & Strom)
4 Zimmer
2-fach verglaste Fenster (Bj. 2016)
2. Obergeschoss (ca. 80 m², ab 01.05.2025 für 900 EUR + Strom vermietet)
3 Zimmer
Bad mit Badewanne & Dusche
Balkon
Dachgeschoss (ca. 55 m²)
2 Zimmer
Badezimmer mit Dusche
Fenster (Bj. 2014)
Lagebeschreibung:
Das angebotene Mehrfamilienhaus befindet sich in Eckerde, einem charmanten Ortsteil der Stadt Barsinghausen in Niedersachsen. Eckerde zeichnet sich durch eine lebendige Dorfgemeinschaft aus, die das kulturelle Leben aktiv gestaltet.
- Umgebung und Infrastruktur:
Verkehrsanbindung: Durch die Nähe zur Barsinghäuser Straße (K 239) ist Eckerde gut an das regionale Verkehrsnetz angebunden. Die Straße verfügt abschnittsweise über Gehwege und ist asphaltiert.
- Öffentliche Verkehrsmittel:
Eine Bushaltestelle befindet sich in unmittelbarer Nähe, was den Anschluss an den öffentlichen Nahverkehr erleichtert.
- Einrichtungen des täglichen Bedarfs:
In der Umgebung sind diverse Einrichtungen wie Supermärkte, Bäckereien und Apotheken vorhanden, die eine gute Versorgung sicherstellen.
- Bildungseinrichtungen:
Kindergärten und Schulen sind in den umliegenden Ortsteilen von Barsinghausen leicht erreichbar.
- Freizeit und Kultur:
Eckerde bietet durch seine aktive Dorfgemeinschaft zahlreiche kulturelle Veranstaltungen und Freizeitmöglichkeiten, die das Leben in diesem Ortsteil bereichern.
Insgesamt überzeugt die Lage durch eine harmonische Kombination aus ländlicher Idylle und guter Anbindung an städtische Infrastrukturen, was sie sowohl für Familien als auch für Pendler attraktiv macht.
Die Käufer-Provision beträgt 3 % vom Kaufpreis zzgl. der
gesetzlichen MwSt. Die Käufer-Provision ist verdient und fällig mit
notarieller Beurkundung. Der Immobilienmakler hat einen provisionspflichtigen Maklervertrag in gleicher Höhe mit dem Verkäufer abgeschlossen.
**********************************
Termine für Besichtigungen sind ausschließlich vorher mit unserem Büro bzw. mir abzustimmen.
**********************************
Bitte lassen Sie mir vorher Ihre Anfrage mit Ihren vollständigen Daten zukommen.
**********************************
Sie haben auch ein Haus oder eine Wohnung in dieser Lage zu verkaufen? Genau für Ihre Immobilie haben wir den passenden Käufer.
**********************************
Gern beraten wir Sie zum Thema Finanzierung und erstellen Ihnen ein individuelles Kreditangebot. Wir arbeiten mit vielen renommierten Banken zusammen.
Ansprechpartner
Telefax: 004951164682029
anfrage@mercan-immobilien.de
Ich bin damit einverstanden, dass mir Karten von Google angezeigt werden. Es gelten die Datenschutzbedingungen von Google (https://policies.google.com/privacy).
Ich bin einverstanden