Objektart
Adresse
Objektdaten
Informationen
Ausstattung
Details
Angeboten wird eine wunderschöne Maisonette-Wohnung in einem gepflegten Zweifamilienhaus im beliebten Stadtteil Hannover-Bemerode. Die großzügige Wohnung erstreckt sich über das erste Obergeschoss und das Dachgeschoss und überzeugt durch eine helle, freundliche Atmosphäre sowie eine durchdachte Raumaufteilung, die idealen Wohnkomfort für Familien bietet.
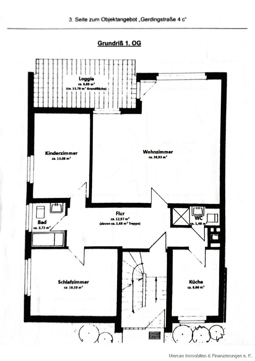
Im ersten Obergeschoss erwartet Sie ein großzügiges und lichtdurchflutetes Wohn- und Esszimmer mit Zugang zur sonnigen Loggia. Die angrenzende, gut ausgestattete Küche bietet ausreichend Platz für gemeinsame Kochmomente. Ein Gäste-WC, ein Kinderzimmer, das Hauptbadezimmer mit Badewanne und Fußbodenheizung sowie ein gemütliches Schlafzimmer mit Wandheizung vervollständigen diese Ebene. Über Flur gelangt man mit einer Wendeltreppe Dachgeschoss.
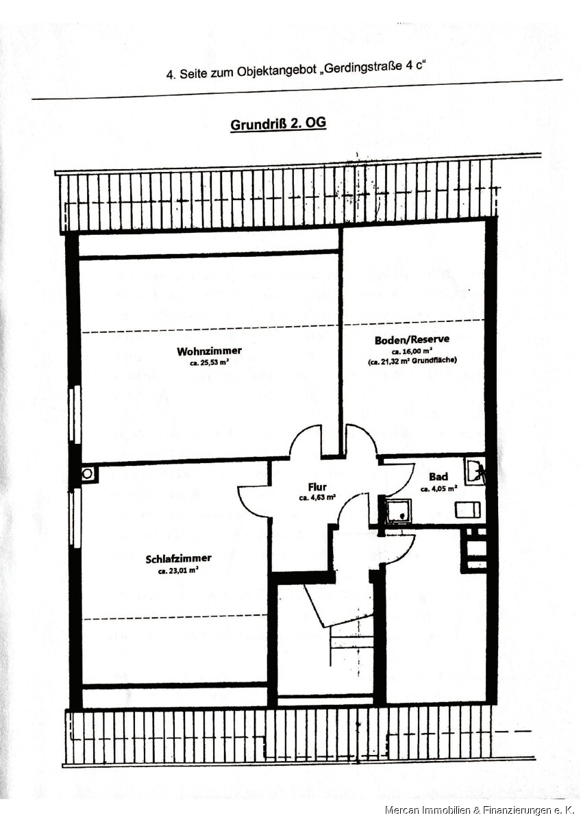
Im Dachgeschoss befinden sich zwei große, helle Kinderzimmer, ein weiteres Badezimmer mit Dusche sowie ein zusätzlicher Raum, der derzeit als Hauswirtschaftsraum genutzt wird. Besonders praktisch ist der separate Wohnungseingang vom Treppenhaus, der einen direkten Zugang zum Dachgeschoss ermöglicht und vielfältige Nutzungsmöglichkeiten schafft - beispielsweise für heranwachsende Kinder, Gäste oder ein Homeoffice.
Die Wohnung vereint das großzügige Wohngefühl eines Einfamilienhauses mit den Vorzügen einer Eigentumswohnung und besticht durch ihre ruhige, familienfreundliche Lage in Bemerode.
Die Wohnung ist seit 15.06.2021 Vermietet.
Diese Maisonette-Wohnung bietet ein behagliches Zuhause für Menschen, die Wert auf Raum, Licht und Wohnqualität legen - ein Ort zum Wohlfühlen und Ankommen.
- Seit dem 15.06.2021 vermietet
- großzügige Maisonette-Wohnung über zwei Ebenen in einem Zweifamilienhaus (1. OG und DG)
- helle, freundliche Räume mit durchdachtem Grundriss
- sonnige Loggia mit schönem Ausblick
- Haupt-Bad mit Badewanne und Fußbodenheizung
- zusätzliches Duschbad im Dachgeschoss
- separates Gäste-WC
- zwei große Kinderzimmer im Dachgeschoss
- zusätzlicher Raum als Hauswirtschafts- oder Abstellraum nutzbar
- separater Zugang zum Dachgeschoss (zweiter Wohnungseingang)
- ruhige, familienfreundliche Wohnlage in Hannover-Bemerode
Die Wohnung befindet sich in einer ruhigen und begehrten Wohnlage im beliebten Stadtteil Hannover-Bemerode. Das Umfeld ist geprägt von gepflegten Wohnhäusern, viel Grün und einer angenehmen, familienfreundlichen Nachbarschaft.
Bemerode zählt zu den gefragtesten Wohngebieten im Südosten Hannovers und bietet eine ideale Kombination aus städtischer Infrastruktur und naturnahem Wohnen. Einkaufsmöglichkeiten für den täglichen Bedarf, Bäckereien, Apotheken sowie Schulen, Kindergärten und Ärzte befinden sich in unmittelbarer Nähe.
Die Anbindung an den öffentlichen Nahverkehr ist ausgezeichnet: Die Stadtbahnlinie 6 sorgt für eine schnelle Verbindung in die Innenstadt, die in rund 15 Minuten erreichbar ist. Auch die Autobahnen A7, A37 und der Messeschnellweg sind in wenigen Minuten erreichbar und bieten eine sehr gute überregionale Anbindung.
Für Freizeit und Erholung sorgen zahlreiche Grünflächen und Naherholungsgebiete wie der Kronsberg, der Tiergarten oder der Stadtwald Eilenriede, die zu Spaziergängen, Radtouren und sportlichen Aktivitäten einladen.
Die ruhige Wohnlage in Verbindung mit der hervorragenden Infrastruktur macht diese Immobilie zu einem idealen Zuhause für Familien, Paare und alle, die das Leben in einem harmonischen und dennoch zentral gelegenen Stadtteil schätzen.
Sie haben auch ein Haus oder eine Wohnung in dieser Lage ? Und überlegen zu verkaufen ? Gern berate ich Sie unverbindlich und kostenlos und ermittle den aktuellen Marktwert Ihrer Immobilie.
-----------------------------
Termine für Besichtigungen sind ausschließlich vorher mit unserem Büro abzustimmen.
-----------------------------
Bitte vorher unbedingt vollständige Anfrage mit Telefonnummer zukommen lassen.
Besichtigungen finden auch am Wochenende statt. Bitte rufen Sie mich einfach unter
0171-9392750 an.
-----------------------------
Gern beraten wir Sie zum Thema Finanzierung und erstellen Ihnen ein individuelles Kreditangebot. Wir arbeiten mit vielen renommierten Banken zusammen.
Rechtshinweis
Ansprechpartner
Telefax: 004951164682029
anfrage@mercan-immobilien.de
Ich bin damit einverstanden, dass mir Karten von Google angezeigt werden. Es gelten die Datenschutzbedingungen von Google (https://policies.google.com/privacy).
Ich bin einverstanden