Objektart
Adresse
Objektdaten
Informationen
Details
Gewerbeliegenschaft mit Bürogebäude und Halle in zentraler Lage.
Angeboten wird eine Gewerbeliegenschaft mit Bürogebäude und angebauten Halle mit Büro und Lagerflächen. Eine zusätzliche abgeschlossene Garage und Stellplätze runden das Angebot ab.
Das Eckgrundstück im beliebten Gewerbegebiet "alter Flughafen" ist ca. 1813 m³ groß. Es ist nahezu rechteckig geschnitten. Die mittlere Breite beträgt 30 m und die mittlere Tiefe ca. 60 m und bietet 2 Zufahrten.
Das massiv erbaute Bürogebäude ist ca. 1961/1991 Ausbau 1. OG erbaut.
Es bietet auf drei ebenen eine Büro und Ausstellungsfläche von ca. 540 m².
2021 wurde durch den jetzigen Eigentümer das Bürogebäude umfangreich modernisiert. So wurden die Fenster mit Dreifachverglasung, die Leitungssysteme (Gas, Wasser, Strom, Abwasser), Heizkörper im EG, neue Fußbodenheizung im 1. OG, Bäder und Toiletten, Bodenbeläge, Innenausbau erneuert.
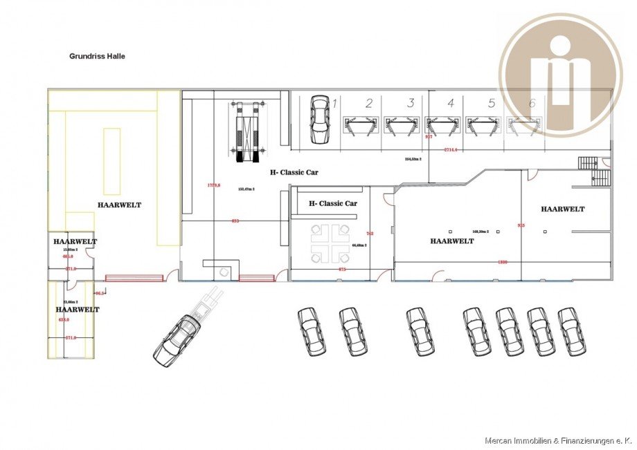
Die daran angrenzende Lagergebäude ist ebenfalls in massiver Ausführung und wurde 1993 erbaut. Es bietet auf ca. 750 m² integrierten Büro und Lagerbereiche und vielfältige Nutzungsmöglichkeiten. Zwei Rolltore sowie Türen daneben bieten flexible Zugangsmöglichkeiten. Teilbereiche in der Lagerhalle sind als Werkstatt vermietet.
Eine angrenzende Garage mit Rolltor sowie ca. 8 Außenstellplätze runden dieses Angebot ab.
Haben wir Ihr Interesse geweckt ?
Dann lassen Sie uns Ihre vollständige Anfrage zukommen.
Gern organisieren wir eine vor Ort Besichtigung.
- Grundstückfläche 1.813 m²
- Eckgrundstück mit 2 Zufahrten
- eine abschließbare Einzelgarage mit Rolltor
- 8 Stellplätze auf dem Hof
- Gaszentralheizung
- Bürogebäude aus 1961 und 1991 Ausbau 1. OG
das Bürogebäude besteht aus KG als Souterrain, EG und 1. OG und bietet ca. 540 m²
- Das Lagergebäude aus 1993 mit integrierten Büroräumen mit ca. 750 m²
- zwei Rolltore
- komplett gepflastert
- diverse WC Anlagen
- KG: Badezimmer mit Dusche, separates WC mit Kabinen,
- EG zwei WCs für Damen und Herren
- 1. OG: ein WC
- Alarmanlage
- Kameraüberwachung
Die Gewerbeliegenschaft in der Ikarusallee 34, 30179 Hannover, befindet sich in einem lebendigen und beliebten Gewerbegebiet "alter Flughafen" mit einer bunten Mischung aus Handwerksbetrieben, Großhändlern und Logistikunternehmen.
Die hervorragende Erreichbarkeit wird durch die nahegelegene Vahrenwalder Straße und eine ausgezeichnete Anbindung an öffentliche Verkehrsmittel gewährleistet. Die Autobahn A2 ist ebenfalls in unmittelbarer Nähe, und der Flughafen Langenhagen ist nur wenige Kilometer entfernt, was die Lage besonders attraktiv für Unternehmen macht, die eine gute Erreichbarkeit sowohl im regionalen als auch im überregionalen Kontext suchen.
Die Käufer-Provision beträgt 3 % vom Kaufpreis zzgl. der
gesetzlichen MwSt. Die Käufer-Provision ist verdient und fällig mit
notarieller Beurkundung.
**********************************
Termine für Besichtigungen sind ausschließlich vorher mit unserem Büro bzw. mir abzustimmen.
**********************************
Bitte lassen Sie mir vorher Ihre Anfrage mit Ihren vollständigen Daten zukommen.
**********************************
Sie haben auch ein Haus oder eine Wohnung in dieser Lage zu verkaufen? Genau für Ihre Immobilie haben wir den passenden Käufer.
**********************************
Gern beraten wir Sie zum Thema Finanzierung und erstellen Ihnen ein individuelles Kreditangebot. Wir arbeiten mit vielen renommierten Banken zusammen.
Ansprechpartner
Telefax: 004951164682029
anfrage@mercan-immobilien.de
Ich bin damit einverstanden, dass mir Karten von Google angezeigt werden. Es gelten die Datenschutzbedingungen von Google (https://policies.google.com/privacy).
Ich bin einverstanden