Objektart
Adresse
Objektdaten
Informationen
Ausstattung
Details
Dieses Mehrfamilienhaus eignet sich hervorragend für Kapitalanleger mit langfristiger Vermietungsstrategie, aber auch für Eigennutzer, die die großzügige Erdgeschosswohnung selbst beziehen möchten. Dank der soliden Mieteinnahmen, der umfangreichen Modernisierungen und der attraktiven Lage handelt es sich um eine zukunftssichere Immobilie mit hoher Lebens- und Wohnqualität.
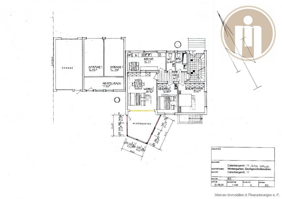
Das Objekt erstreckt sich über Unter-, Erd-, Ober- und Dachgeschoss und bietet insgesamt ca. 274 m² Wohnfläche auf einem großzügigen Grundstück von 918 m².
Aktuell sind das Untergeschoss, das Obergeschoss sowie das Dachgeschoss zuverlässig vermietet. Das Erdgeschoss wird vom Eigentümer selbst bewohnt und kann nach Verkauf voraussichtlich zum 01.07.2026 frei übergeben werden - ideal für Selbstnutzer oder als zusätzliches Vermietungspotenzial.
Aufteilung
Untergeschoss: 2-Zimmer-Einliegerwohnung, ca. 60 m², vermietet für 400 EUR Kaltmiete
Erdgeschoss: ca. 110 m², 3 Zimmer, Küche, Bad mit Dusche, Gäste-WC und Flur; gepflegte Einbauküche inklusive
Obergeschoss: ca. 97 m², 3 Zimmer, Küche, Bad mit Dusche, Gäste-WC und Balkon; vermietet für 1.150 EUR Kaltmiete zzgl. 100 EUR Garage
Dachgeschoss: 3 Zimmer, Küche und Bad mit Dusche; vermietet für 800 EUR Kaltmiete
Die monatlichen Mieteinnahmen belaufen sich derzeit auf 2.450 EUR netto bzw. 2.950 EUR brutto.
Sanierungsmaßnahmen:
2015 Neue Gasheizung und Heizkörper
2018 Kelleraußenwand freigelegt und abgedichtet
2018 Wasser- und Abwasserleitungen erneuert
2025 Fassadendämmung mit 18 cm Wärmedämmung
2025 Neue dreifach verglaste Fenster
2025 Dachüberarbeitung
2025 Alle Heizkörper im gesamten Haus erneuert
2025 Vorder- und Hintergarten neugestaltet
Wohnungen:
EG:
Bad und WC neu (2025),
Wintergartenboden (Vinyl, 2025),
übrige Bodenbeläge (2020),
Wände neu verputzt (2020),
Einbauküche (2013)
OG:
Bad und WC neu (2025),
Bodenbeläge (2025),
Einbauküche (2018)
DG:
Bad neu (2025),
Einbauküche (2025)
Besondere Merkmale:
Grundstücksgröße: ca. 918 m²
Gesamtwohnfläche: ca. 274 m² (EG, OG, DG)
ca. 100 m² Nutzfläche im Keller
3 Einzelgaragen
3 Wohneinheiten und eine Einliegerwohnung im Keller
(davon drei vermietet, eine eigengenutzt)
Netto-Mieteinnahmen: 2.450 EUR / Brutto: 2.950 EUR
Einbauküchen in allen Wohnungen, Eigentum des Verkäufers
Wohnung im EG wird möbliert übergeben
Gartenbewässerungsanlage vorhanden
Gas-Zentralheizung (Bj. 2015)
Das Mehrfamilienhaus liegt in einer ruhigen und gewachsenen Wohngegend von Seelze, nur wenige Kilometer westlich von Hannover. Hier genießt man die Vorzüge einer entspannten Wohnlage im Grünen und profitiert gleichzeitig von der schnellen Anbindung an die Großstadt.
Mit dem Auto erreicht man Hannover in kurzer Zeit über die B6 und die Autobahn A2, ebenso stehen mehrere S-Bahn-Anschlüsse zur Verfügung, die eine bequeme Verbindung in die Innenstadt und ins gesamte Umland ermöglichen.
Seelze selbst bietet alles, was man zum täglichen Leben benötigt: Einkaufsmöglichkeiten, Schulen, Kindergärten, Ärzte und vielfältige Freizeitangebote befinden sich in unmittelbarer Nähe. Zahlreiche Grünflächen, Sportanlagen und die reizvolle Umgebung des Calenberger Landes laden zu Erholung und Aktivitäten im Freien ein.
Sie haben auch ein Haus oder eine Wohnung in dieser Lage ? Und überlegen zu verkaufen ? Gern berate ich Sie unverbindlich und kostenlos und ermittle den aktuellen Marktwert Ihrer Immobilie.
-----------------------------
Termine für Besichtigungen sind ausschließlich vorher mit unserem Büro abzustimmen.
-----------------------------
Bitte vorher unbedingt vollständige Anfrage mit Telefonnummer zukommen lassen.
Besichtigungen finden auch am Wochenende statt. Bitte rufen Sie mich einfach unter
0171-9392750 an.
-----------------------------
Gern beraten wir Sie zum Thema Finanzierung und erstellen Ihnen ein individuelles Kreditangebot. Wir arbeiten mit vielen renommierten Banken zusammen.
Rechtshinweis
Ansprechpartner
Telefax: 004951164682029
anfrage@mercan-immobilien.de
Ich bin damit einverstanden, dass mir Karten von Google angezeigt werden. Es gelten die Datenschutzbedingungen von Google (https://policies.google.com/privacy).
Ich bin einverstanden